27.5kv户内高压交流或直流真空负荷开关隔离开关铁路用机务段组合电器NFN
FK(R)N12-27.5压气式(单极)双极负荷开关(单极、双极)

1、 概 述
1.1主要用途
FKN12-27.5(D)/630-20型户内交流高压负荷开关(以下简称FKN12-27.5(D)负荷开关)是额定电压27.5kV、额定频率50Hz的二相交流高压开关设备,用于分合负荷电流、闭环电流、空载变压器和电缆充电电流、关合短路电流等,配装接地开关的负荷开关,可以承受短路电流。
FKN12-27.5(D)/630-20型户内交流高压负荷开关-熔断器组合电器(以下简称FKN12-27.5(RD)组合电器,是FKN12-27.5(D)负荷开关与S□LAJ-40.5(XRNT□-40.5)高压限流式熔断器组合在一起的户内高压开关设备。它可以可靠的开断直至额定短路开断电流的任何电流,负荷开关开断工作电流,熔断器开断短路电流,联合开断工作电流与全短路电流之间的任何过电流,同时熔断器通过撞击器使负荷开关分闸。
1.2 适用范围
FKN12-27.5(D)双极负荷开关和FKN12-27.5(RD)双极组合电器主要用于铁路牵引网27.5KV变压器前端的配电设施中,作负荷控制和短路保护之用。由于组合电器对变压器等电气设备的保护作用比用断路器更可靠,可作干式变压器高温跳闸、重瓦斯跳闸保护、误带电开门的跳闸保护等。
1.3 产品采用标准
GB311.1-2012 高压输变电设备的绝缘配合
GB3804-2004 3.6~40.5kV高压交流负荷开关
GB/T 11022-2011 高压开关设备和控制设备标准的公共技术要求
DL/T593-2006 高压开关设备和控制设备标准的公共技术要求
GB16926-2009 交流高压负荷开关—熔断器组合电器
GB/T 1985-2014 高压交流隔离开关和接地开关
GB/T 15166 -2008 交流高压熔断器
1.4 正常工作环境
a)周围空气温度不超过+40℃~-45℃,24h内平均最高温度+35℃;
b)24h 最大平均相对湿度≤95%,1个月最大平均相对湿度≤90%:
c)周围空气没有明显地受到尘埃、烟、腐蚀性和/或可燃性气体、蒸汽或盐雾的污染;d)海拔高度 ≤1000m;
e)周围的空气不受腐蚀性或可燃气体、水蒸气等明显污染;
f)无经常性剧烈震动;
g)耐污秽等级:Ⅱ级
若使用条件超出上述规定时由用户和制造厂协商确定。。
2、 型号与技术参数

|
序号
|
名 称
|
单位
|
FKN12-27.5(D)/630
|
FKRN12-27.5(RD)/125
|
|
1
|
额定电压
|
kV
|
27.5
|
|
2
|
额定频率
|
Hz
|
50
|
|
3
|
额定电流
|
A
|
630
|
125(熔断器)
|
|
4
|
雷电冲击耐受电压
|
kV
|
对地及相间185、隔离断口215
|
|
5
|
1min工频耐受电压
|
kV
|
对地及相间95、隔离断口118
|
|
6
|
额定热稳定电流
|
kA
|
20(4s)
|
|
7
|
额定动稳定电流
|
kA
|
50
|
|
8
|
额定关合电流(峰值)
|
kA
|
50
|
|
|
9
|
额定短路开断电流
|
kA
|
|
31.5
|
|
10
|
额定转移电流
|
A
|
|
1200
|
|
11
|
最大开断电流(参考值)
|
A
|
1500
|
|
12
|
开断空载变压器容量
|
kVA
|
1250
|
|
13
|
额定电缆充电电流
|
A
|
10
|
|
14
|
额定有功负载电流开端次数
|
次
|
>100
|
|
15
|
撞击器触发负荷开关分闸时间
|
mS
|
|
<65
|
|
16
|
接地开关热稳定电流
|
kA
|
20(4s)
|
|
17
|
接地开关动稳定电流(峰值)
|
kA
|
50
|
|
18
|
电动操作电源电压(AC、DC)
|
V
|
110、220
|
机械特性参数(见表2)
表2
|
序号
|
名 称
|
单位
|
FKN12-27.5(D)/630
|
FKRN12-27.5(RD)/125
|
|
1
|
动触头总行程
|
mm
|
380±5
|
|
2
|
动触头超行程
|
mm
|
35±2
|
|
3
|
辅助触头开距
|
mm
|
>360
|
|
4
|
三相合闸同期性
|
ms
|
≤12
|
|
5
|
三相分闸同期性
|
ms
|
≤20
|
|
6
|
刚分速度
|
m/s
|
≥2.5
|
|
7
|
刚合速度
|
m/s
|
≥2.5
|
|
8
|
接地开关断口距离
|
mm
|
360±5
|
|
9
|
主回路电阻
|
μΩ
|
≤180
|
≤400
|
|
10
|
最大操作力矩
|
Nm
|
<180
|
<200
|
注:
1. 辅助触头开距是在静弧触头与导电筒喷口端面之间的距离基础上再加上30mm;
2. 测量FKN12-27.5(RD)组合电器主回路电阻时,熔断器用阻值可忽略不计的导电棒代替。
2.4 熔断器 FKN12-27.5(RD)组合电器配用的变压器保护用高压限流式熔断器,其技术性能应符合国家标准GB/T15166.2-2008,在规定的使用条件下能可靠地分断最小开断电流(2.5~3倍熔体额定电流)至额定短路开断电流(31.5kA)的任何故
障电流。
2.4.1 主要技术参数(见表3)
|
序号
|
型 号
|
熔体额定电流(A)
|
配用变压器容量(kVA)
|
|
1
|
SDLAJ-40.5
|
XRNT□-40.5
|
3.15
|
≤40
|
|
2
|
6.3
|
100
|
|
3
|
10
|
125、160
|
|
4
|
16
|
200、250
|
|
5
|
20
|
315
|
|
6
|
25
|
400
|
|
7
|
31.5
|
500
|
|
8
|
40
|
630
|
|
9
|
SFLAJ-40.5
|
50
|
800
|
|
10
|
63
|
1000
|
|
11
|
80
|
1250
|
|
12
|
SKLAJ-40.5
|
100
|
1600
|
|
13
|
125
|
2000
|
2.4.2 熔断器的撞击器 在熔断器动作后,其撞击器将触发组合电器的机构使之脱扣分闸,一般应选用最大工作行程为26mm,撞击能量为2~5焦耳的中型撞击器。
3主要结构
负荷开关结构
3.1.1 FKN12-27.5(D)负荷开关结构
(1) 该产品由框架、导电灭弧系统和操作机构等几部分组成,导电灭弧系统的静触头安装在绝缘支架内,并将绝缘支架固定在框架上部。动触头在绝缘拐臂的驱动下,做上下直线运动,使负荷开关实现分、合闸操作。操作机构为压缩弹簧过中机构,安装在框架上。
(2) 框架的下部可以根据需要安装接地开关,该接地开关与主开关之间有联动装置,并与负荷开关联锁。当接地开关合闸后,负荷开关不能合闸,当接地开关分闸后,负荷开关可进行分、合闸操作。
3.1.2 FKN12-27.5(RD)组合电器结构及操作
FKN12-27.5(RD)组合电器是由FKN12-27.5(D)负荷开关和高压限流熔断器组合而成,它所采用的操作机构为弹簧储能机构,该机构主要由合闸压缩弹簧、半轴合闸装置、分闸拉伸弹簧以及脱扣装置等组成,并安装在框架之上。当组合电器的操作主轴顺时针转动时,合闸弹簧和分闸弹簧同时储能,主轴转动到一定位置时,半轴合闸装置突然释放,靠合闸弹簧释放的能量使组合电器合闸。操作主轴逆时针转动时,脱扣装置失去保持状态,分闸弹簧释放能量,驱动组合电器分闸,继续转动主轴,使操作机构复位。
运行状态的组合电器,若导电回路的一相至三相有故障电流使熔断器动作,其撞击器将触发组合电器的分闸脱扣装置,使其已闭锁的脱扣装置解锁,已储能的分闸弹簧驱动组合电器分闸。FKN12-27.5(RD)组合电器可根据需要安装与FKN12-27.5(D)负荷开关相同结构的接地开关,起保护作用。
3.2 导电灭弧系统
FKN12-27.5(D)负荷开关采用压气式灭弧结构,导电部件和灭弧部件是分开设置的,中空的动触头内部有一个静止不动的活塞,当动触头向下快速作分闸运动时,动触头内部被压缩的空气高速从绝缘喷口喷出,猛烈吹向电弧,使电弧过零熄灭。当动触头在合闸弹簧作用下,快速向上运动时,引弧针首先与产弧触头接触,避免产气管与静触头之间产生电弧,直到产气管完全与静触头接触。分闸后的FKN12-27.5(D)负荷开关隔离断口是明显可见的,因此该断口可以作为隔离开关之用。
FKN12-27.5D负荷开关(双极)的外形及安装尺寸见图一;
FKN12-27.5R组合电器(双极)的外形及安装尺寸见图二;
FKN12-27.5RD组合电器(双极)的外形及安装尺寸见图三;
FKN12-27.5负荷开关外形(双极)及安装尺寸见图四;
FKN12-27.5D负荷开关(单极)的外形及安装尺寸见图五;
FKN12-27.5R组合电器(单极)的外形及安装尺寸见图六;
FKN12-27.5RD组合电器(单极)的外形及安装尺寸见图七;
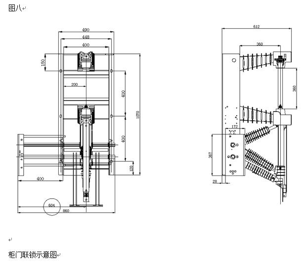
FKN12-27.5负荷开关外形(单极)及安装尺寸见图八;
(注 :图中尺寸L可按用户要求定做。)
图一










4、 安装与调试
4.1安装
(1)产品出厂时为单台包装,开箱前首先对产品外包装进行检查有无受雨淋、受潮或破损情况,并在户内进行开箱,开箱后对产品进行外观检查,是否有破损、受潮、变形、保护层剥脱等不良现象。按装箱单检查随机配件和技术资料是否齐全。
(2) 清洁产品表面,尤其是绝缘件、外露的导电部件和接地部分的表面,并活动的导电接触面涂少许中性凡士林,但不能涂到喷口内。
(3)框架上的6个13×20的腰孔,配用M12的螺栓固定;
(4)负荷开关的操作主轴中心对地高度建议不要低于1.1米;
(5)负荷开关的安装方式有两种:侧装和倒侧装,操作主轴与开关柜正面门板垂直;
(6)安装时必须保证操作主轴对框架、框架与开关柜骨架之间有良好的接地。
4.2 调试
对安装完毕的产品,应进行如下的调试:
(a)测试刚分、刚合速度,应符合表2之规定值;
(b)对负荷开关和接地开关各进行10次分合操作,动作应正常,并符合表2要求。负荷开关与接地开关之间联锁应可靠,接地开关与绝缘活门连动应可靠;
(c)用模拟熔断器对组合电器进行撞击器脱扣分闸试验,每相二次,动作应可靠,并且分闸后不能再实现合闸操作;
(d)按表1对产品进行1min工频耐压试验,在负荷开关和接地开关的相间、相对地和断口之间进行;
(e)按表1对产品进行主回路电阻的测试。
5.使用和操作
5.1 负荷开关在投入运行,准备合闸前,开关柜门板应处于关闭状态并且不能被打开,接地开关应处于分闸位置;
5.2 在需要检修开关或更换已动作的熔断器时,应先将负荷开关分闸(组合电器已自动分闸)并复位,,目测确认后再合上接地开关,打开柜门,确认绝缘隔板已经关闭,方可进柜操作;
5.3 熔断器应按制造厂提供的使用说明书安装,在安装时必须保证熔断器的撞击器指向开关脱扣撞击板,将导电夹片上的弹簧卡好,并保证接触良好;
5.4 除非已确认某相熔断器没有通过故障电流,在组合电器自动分闸后,三相熔断器无论撞击器是否弹出,都应全部更换;
5.5 在使用期间允许对操作机构及主轴等机械传动部件注以少许润滑脂;
5.6 组合电器在自动分闸,并已更换熔断器进行合闸操作前,应先沿分闸方向转动手柄使机构复位后才能进行合闸操作;
5.7 用户有特殊要求时,请与制造厂协商。
6. 程序防误锁使用及说明
所谓程序防误锁就是两把锁共用一把钥匙,实现两台负荷开关的机械互锁。如用钥匙插入“A”开关上的锁孔,顺时针旋转180°,打开“A”开关上的锁,“A”开关可以合闸,“A”开关处于合闸状态,钥匙取不下来。此时“B”开关由于没有钥匙开锁,而不能进行分合闸操作,若想“B”开关合闸,则必须先使“A”开关分闸,逆时针旋转180°取下钥匙,将钥匙插入“B”开关上的锁孔,按上述方法及程序,合上“B”开关,同时“A”开关被锁住而处于分闸位置。
7.维护
7.1运行一年后,应对产品的绝缘水平进行检查;
7.2在满负荷开断100次后,应对主回路电阻、负荷开关的动、静主触头及辅助触头、喷口等进行检测;
7.3累计机构操作次数达到2000次后,应对机构性能进行检查,用户对产品进行维护时,应在专业技术人员指导下进行,必要时,可向制造厂咨询。
8.运输和贮存
8.1产品在运输过程中,不得翻滚、受潮和雨淋,不得受到剧烈振动、损坏和物件;
8.2产品应贮存于室内,室内的温度、湿度等环境条件应符合产品正常工作环境的要求;
9.随机文件及附件
9.1使用说明书
9.2电气接线图
9.3产品合格证;
9.4出厂检验报告;
9.5操作手柄;
9.6门联锁配件;
10 订货须知
10.1 产品全型号及名称;
10.2 安装方式(侧装、倒侧装、壁挂式);
10.3 操作方式(手动或电动);
10.4 电机、分励脱扣的电源种类及工作电压。